Центральные холодильные машины
от 2500000 ₽
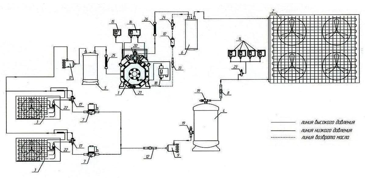
Если вы хотите купить центральную холодильную машину от производителя по выгодной цене, узнайте, сколько стоит ее изготовление на заказ, и закажите надежное производство под ключ — обращайтесь в нашу компанию в Москве, где каждый проект реализуется с соблюдением строгих требований клиента.
Где применяются ЦХМ?
- В супермаркетах, ТК, торговых точках, где центральное охлаждение важно.
- На предприятиях пищевой промышленности: пивные заводы, молочные и другие большие предприятия, где системы соединены в единое целое, и подбор оборудования холодильного типа осуществляется, исходя из этого, с центральной установкой.
- Пиццерии, общепит, столовые, кафе, бары и аналогичный бизнес (для большого объема продуктов: рыбы для суши, порционных блюд в гастроемкостях и других емкостях и контейнерах, пива, винных напитков, расходников для кофе, прочих охлаждаемых вещей), в промышленных и коммерческих локациях такого рода. Особенности холодильных систем делают их идеальным выбором.
- Фармацевтические точки, где такие центральные виды машин оптимальны.
- Также для централизованного холодоснабжения такие холодильные решения применяются в HORECA (гостиницы и т.д.), плюс в прачечных.
Основные виды ЦХМ
По бренду машины/частей техники.












